ミルフォード・リアルエステート

賃貸物件詳細ページ

プラウドフラット品川大井町512号室品川区南品川

マンション

賃   料 32.9万円

管理費:15000円

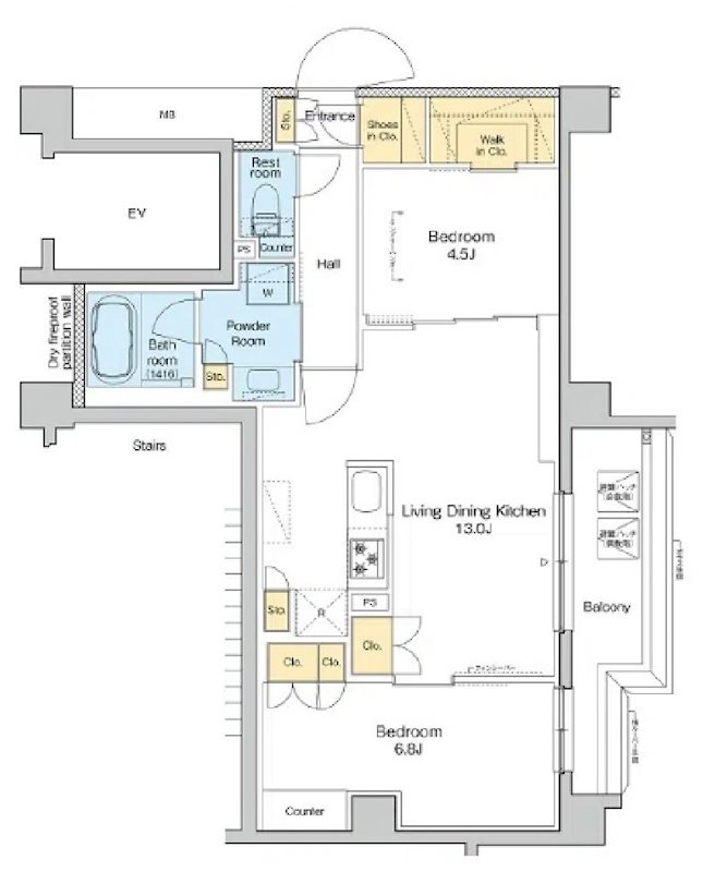
間取り 2LDK

面積:57.88㎡

交通:京浜東北線
大井町駅

敷金/礼金:1ヶ月/-
保証金/敷引/償却金:-/-/-
所在地:品川区南品川
築年月:2022年12月
種別:マンション

おすすめPOINT!

人気の設備が充実しています♪インターネット無料。

※間取りの「S」はサービスルーム(納戸)です。

見学・空室確認などの詳しいお問い合わせはこちらから

お問合せ番号HI0000008885

  TEL:03-5781-2621

セールスポイント

特徴 防犯カメラ,最上階,上階無し,2F以上,オートロック,ダブルロック,ディンプルキー,電子ロック,電子キー,ドアタッチキー,保証人(不要)
設備 エレベーター,敷地内ゴミ置き場,システムキッチン,対面式キッチン,ガスコンロ設置済,3口以上コンロ,ガスキッチン,バス・トイレ別,追い焚き風呂,浴室乾燥,脱衣所,シャワー,温水洗浄便座,洗面台,洗面所独立,洗面化粧台,シャワー付洗面台,エアコン,BS,CS,CATV,ネット使用料不要,インターホン,TVインターホン,給湯,フローリング,室内洗濯機置場,洗濯機置場,クローゼット,クローゼット2ヶ所,クローゼット3ヶ所,ウォークインクローゼット,シューズボックス,収納有,ガス(都市ガス),下水(公共下水),水道(公営),電気
光ファイバー 空調
部屋外設備 バルコニー
駐車場 駐車場:空無 44000円/月~ 駐輪場:有 バイク置き場:有
周辺施設 コンビニ:ローソン 南品川六丁目店 335m
ドラッグストア:ユニバーサルドラッグ 大井町店 404m
スーパー:まいばすけっとゼームス坂店 496m
コンビニ:セブンイレブン南品川 485m

物件概要

物件名 プラウドフラット品川大井町512号室
物件所在地 東京都品川区南品川6丁目2-3
交通機関 京浜東北線 大井町駅 徒歩9分
京急本線 青物横丁駅 徒歩10分
山手線 大崎駅 徒歩20分
間取り詳細 洋室(4.5畳) 洋室(6.8畳) LDK(13畳)
専有面積 57.88㎡
所在階/階数 5/5 部屋向き
建物構造 鉄筋コンクリート 築年月 2022年12月
賃料 32.9万円 管理費等 15000円
敷金 1ヶ月 礼金 -
保証金 - 敷引き/償却金 -/-
更新料 新賃料 1ヶ月
その他一時金 鍵交換費用:36,300円 その他費用
損害保険 有 
契約形態 普通借家契約 定期借家契約期間
保証会社 必須 (オリコフォレントインシュア) 初回:月額賃料等合計の40% 月額:800円 保証人代行 必須
現況 退去予定 入居時期 予定 2025年10月下旬
備考 コンビニ:ローソン 南品川六丁目店 335m
ドラッグストア:ユニバーサルドラッグ 大井町店 404m
スーパー:まいばすけっとゼームス坂店 496m
コンビニ:セブンイレブン南品川 485m

その他

取引態様 仲介先物 自社管理番号 HI0000008885
情報更新日 2025年10月19日 次回更新予定日 2025年11月4日
不動産会社コード 2115446 物件管理コード 1125635956200000068577

お問い合わせ先:株式会社ミルフォード・リアルエステート 大井町東口店

東京都品川区東大井5丁目17-6 2階    TEL:03-5781-2621
免許番号:東京都知事(6)第78530号