
下目黒戸建目黒区下目黒
賃 料 49.8万円
管理費:0円
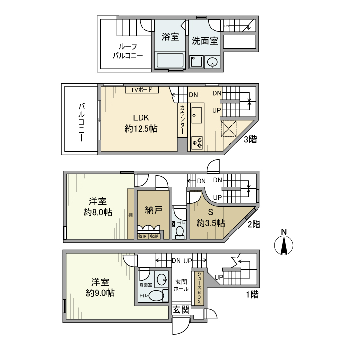
間取り 2SLDK
面積:82.52㎡
交通:山手線
目黒駅
おすすめPOINT!
通勤通学に便利/住環境良好/広々LDK/日当たり良好/
※間取りの「S」はサービスルーム(納戸)です。
| 特徴 | |||
|---|---|---|---|
| 設備 | 宅配BOX,システムキッチン,ガスコンロ設置済,3口以上コンロ,食器洗浄乾燥機,バス・トイレ別,追い焚き風呂,シャワー,トイレ2ヶ所,洗面台,洗面所独立,シャワー付洗面台,TVインターホン,給湯,フローリング,室内洗濯機置場,洗濯機置場 | ||
| 光ファイバー | 空調 | ||
| 部屋外設備 | |||
| 駐車場 | 駐車場:付(無料) | ||
| 周辺施設 | |||
| 物件名 | 下目黒戸建 | ||
|---|---|---|---|
| 物件所在地 | 東京都目黒区下目黒2丁目22-1 | ||
| 交通機関 | 山手線 目黒駅 徒歩7分 | ||
| 間取り詳細 | LDK(12.5畳) 納戸(3.5畳) 洋室(8畳) 洋室(9畳) | ||
| 専有面積 | 82.52㎡ | ||
| 所在階/階数 | 0/3 | 部屋向き | 西 |
| 建物構造 | 木造 | 築年月 | 2012年6月 |
| 賃料 | 49.8万円 | 管理費等 | 0円 |
| 敷金 | 1ヶ月 | 礼金 | 1ヶ月 |
| 保証金 | - | 敷引き/償却金 | -/- |
| 更新料 | 新賃料 1ヶ月 | ||
| その他一時金 | リロサポプラス加入料(月額):2,500円 駐車場登録料 1台(利用時のみ):11,000円 除菌施工料(契約時のみ):19,800円 | その他費用 | |
| 損害保険 | 有 料金:25500円 損保期間:24ヶ月 | ||
| 契約形態 | 普通借家契約 | 定期借家契約期間 | |
| 保証会社 | 必須 保証会社 要:初回 賃料総額100%+月額 賃料総額2%(最低1,000円) | 保証人代行 | 必須 |
| 現況 | 空 | 入居時期 | 即時 |
| 備考 | |||
| 取引態様 | 仲介先物 | 自社管理番号 | MU0000008711 |
|---|---|---|---|
| 情報更新日 | 2026年4月3日 | 次回更新予定日 | 2026年5月3日 |
| 不動産会社コード | 55077 | 物件管理コード | 1125635956200000073715 |