
クレイノアザレア202号室大田区東糀谷
賃 料 9.9万円
管理費:5500円
間取り 1K
面積:23.65㎡
交通:京急空港線
大鳥居駅
おすすめPOINT!
電気コンロ設置でお料理にもとても便利ですよ。室内洗濯機置場/温水洗浄便座/エアコン/浴室乾燥/洗面所独立であると設備も充実。防犯カメラ セキュリティもバッチリですよ。築9年 1K 魅力的な物件の紹介はこちら。素敵な1K・23.65㎡・2F以上の便利な物件で快適に暮らしませんか。京急空港線 大鳥居駅徒歩13分 お部屋探しなら株式会社ミルフォード・リアルエステート
※間取りの「S」はサービスルーム(納戸)です。
| 特徴 | 防犯カメラ,2F以上 | ||
|---|---|---|---|
| 設備 | 電気コンロ,バス・トイレ別,浴室乾燥,温水洗浄便座,洗面所独立,エアコン,家電付,家具付,給湯,室内洗濯機置場 | ||
| 光ファイバー | 空調 | ||
| 部屋外設備 | バルコニー | ||
| 駐車場 | 駐輪場:有 | ||
| 周辺施設 | |||
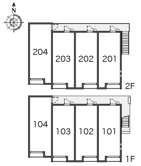
| 物件名 | クレイノアザレア202号室 | ||
|---|---|---|---|
| 物件所在地 | 東京都大田区東糀谷5丁目13-10 | ||
| 交通機関 | 京急空港線 大鳥居駅 徒歩13分 | ||
| 間取り詳細 | |||
| 専有面積 | 23.65㎡ | ||
| 所在階/階数 | 2/2 | 部屋向き | 南 |
| 建物構造 | 木造 | 築年月 | 2016年9月 |
| 賃料 | 9.9万円 | 管理費等 | 5500円 |
| 敷金 | - | 礼金 | 1ヶ月 |
| 保証金 | - | 敷引き/償却金 | -/- |
| 更新料 | 16,500円 | ||
| その他一時金 | 室内清掃費用:41,800円 | その他費用 | |
| 損害保険 | 有 料金:26680円 損保期間:24ヶ月 | ||
| 契約形態 | 普通借家契約 | 定期借家契約期間 | |
| 保証会社 | 必須 保証会社の利用:利用料の100%~120% | 保証人代行 | 必須 |
| 現況 | 居住中 | 入居時期 | 期日指定 2026年5月下旬 |
| 備考 | |||
| 取引態様 | 仲介先物 | 自社管理番号 | OM0000013726 |
|---|---|---|---|
| 情報更新日 | 2026年4月20日 | 次回更新予定日 | 2026年5月4日 |
| 不動産会社コード | 6997 | 物件管理コード | 1125635956200000075026 |